Am Sträßchen -
Bad Camberg
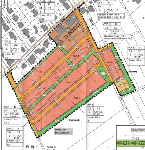
Neubaugebiet „Am Sträßchen “ – Bad Camberg
Lage & Umfeld:
Am südlichen Rand von Bad Camberg entsteht mit dem Baugebiet
„Am Sträßchen“ ein neues Wohnquartier in unmittelbarer Nähe bestehender Wohngebiete rund um
Lisztstraße und Mühlberg. Die Lage verbindet ruhiges Wohnen mit guter Infrastruktur sowie schneller Anbindung an das Rhein-Main-Gebiet.
Durch die Nähe zum ICE-Bahnhof Bad Camberg und zur A3 Frankfurt–Köln ist der Standort besonders attraktiv für Pendler Richtung Frankfurt am Main, Wiesbaden und Limburg an der Lahn.
Grundstücke & Bebauung:
Im Baugebiet entstehen über 40 Baugrundstücke für unterschiedliche Wohnformen.
- Grundstücksgrößen überwiegend zwischen ca. 350 m² und 700 m²
- einzelne größere Grundstücke bis etwa 900 m²
- geeignet für Einfamilienhäuser, Doppelhäuser und teilweise Reihenhäuser
- Der Bebauungsplan sieht mehrere Wohnbereiche (WA-Gebiete) mit unterschiedlichen baulichen Möglichkeiten vor. Dadurch entsteht ein durchmischtes Wohnquartier mit verschiedenen Haustypen und Grundstücksgrößen.
Erschließung & Infrastruktur:
Das Gebiet wird vollständig erschlossen und erhält neue Wohnstraßen sowie Grünflächen. Zusätzlich ist ein Regenrückhaltebecken zur Entwässerung des Baugebiets vorgesehen.
Bad Camberg bietet eine sehr gute Infrastruktur mit:
- Kindergärten und Schulen
- Einkaufsmöglichkeiten und Ärzten
- vielfältigen Freizeit- und Vereinsangeboten
Damit eignet sich das Baugebiet besonders für Familien und Berufspendler.
Vergabe und Rahmenbedingungen:
Die Baugrundstücke werden von der Stadt Bad Camberg über mehrere Vergabeverfahren vergeben.
- Einheimischenmodell (Punktesystem) zur Förderung von Familien und Bürgern mit Bezug zur Stadt
- Vergabe nach besonderen sozialen Kriterien
- teilweise Bieterverfahren mit Mindestgebot von 360 €/m².
Käufer verpflichten sich zudem:
- innerhalb von 5 Jahren nach Erschließung zu bauen
- die Immobilie mindestens mehrere Jahre selbst zu nutzen.


