Im Kißstück -
Weilmünster-Wolfenhausen
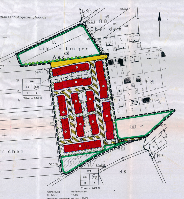
Baugebiet „Im Kißstück“ in Wolfenhausen (Weilmünster)
Lage & Umfeld:
Das Neubaugebiet
„Im Kißstück“ entsteht am Ortsrand von
Wolfenhausen, einem Ortsteil von Weilmünster im Landkreis Limburg-Weilburg.
Das Gebiet liegt in ruhiger Wohnlage mit Übergang zur offenen Landschaft.
Ziel des Baugebiets ist es, neue Baugrundstücke für Einfamilienhäuser zu schaffen und die Entwicklung des Ortsteils moderat zu stärken. Besonders Familien und Bauinteressenten aus der Region sollen hier die Möglichkeit erhalten, ein eigenes Haus zu bauen.
Größe & Nutzung
Das Baugebiet umfasst mehrere Bauflächen für den individuellen Wohnungsbau.
Wichtige Eckpunkte:
- rund 20–25 Baugrundstücke
- Grundstücksgrößen überwiegend ca. 500 m² bis 600 m²
- überwiegend Einfamilienhäuser vorgesehen
- offene Bauweise mit klassischen Wohnhäusern
Planungsstand
Für das Gebiet existiert ein rechtskräftiger Bebauungsplan „Im Kißstück“. Dieser legt die grundlegenden baulichen Rahmenbedingungen fest. Zu den wichtigsten Festsetzungen gehören:
- offene Bauweise
- überwiegend zwei Vollgeschosse zulässig
- GRZ etwa 0,3
- GFZ etwa 0,6
Diese Werte sind typisch für klassische Wohngebiete mit Einfamilienhäusern.
Die Erschließung erfolgt über neue Wohnstraßen innerhalb des Baugebiets.
Teilweise sind auch Geh- und Leitungsrechte sowie Grünflächen vorgesehen.
Infrastruktur & Vorteile
Wolfenhausen bietet eine ruhige Wohnlage im Taunus mit guter regionaler Anbindung.
Vorteile der Lage:
- naturnahes Wohnen im ländlichen Umfeld
- kurze Wege in die Orte der Umgebung
- gute Erreichbarkeit von
- Weilburg
- Usingen
- Bad Camberg
Infrastruktur im Umfeld:
- Kindergarten
- Grundschule
- Vereine und Sportangebote
- Einkaufsmöglichkeiten in Weilmünster und Umgebung
Damit eignet sich das Baugebiet besonders für Familien, die ruhig wohnen und dennoch erreichbar bleiben möchten.
Diskussion & Besonderheiten
Wie bei vielen neuen Baugebieten spielen auch hier Themen wie
- Flächenverbrauch
- Integration in das Ortsbild
- Verkehrsanbindung
eine Rolle.
Der Bebauungsplan berücksichtigt daher unter anderem:
- Grünflächen und Übergänge zur Landschaft
- klare Baugrenzen
- strukturierte Straßenführung innerhalb des Quartiers.
Bedeutung für den Ort
Das Baugebiet „Im Kißstück“ gehört zu den neuen Wohnbauflächen in Wolfenhausen und soll dazu beitragen,
- jungen Familien Baugrundstücke anzubieten
- den Ortsteil behutsam weiterzuentwickeln
- zusätzliche Wohnmöglichkeiten im ländlichen Taunus zu schaffen.
Mit Grundstücksgrößen um 500 bis 600 Quadratmeter richtet sich das Gebiet klar an klassische Einfamilienhaus-Bauherren.


